Frigidaire top mount freezer accessory ice maker kit in the refrigerator parts department at lowes com. 240389616 frigidaire frs26r2a refrigerator wiring diagram pdf doent.

Frigidaire Ice Maker Wiring Diagram Free Wiring Diagram
You can reach us by dialing 1.

Frigidaire refrigerator ice maker wiring diagram. The ice maker receives water from the water inlet valve and will freeze until ice cubes are formed. It shows the elements of the circuit as streamlined shapes and the power and also signal links in between the tools. Fits most frigidaire and kenmore (with model prefix 253) refrigerators made before 2001.
Frigidaire refrigerator service data sheet. This is a single pack; The most common reason to replace this part is if your refrigerator is leaking, or it will not produce ice cubes.
Parts for frigidaire fghs2631pf4a wiring schematic appliancepartspros com. Approved for wqa gold seal. Step by step instructions on how to replace a ice maker wiring harness wpd7813010.
Also see for frigidaire refrigerator. For the filter bypass order 242294402. The ice machines are wired correctly only the wiring diagram is incorrect.
(6) this is a genuine frigidaire part for your refrigerator. One phillips screw is on the side, one screw is underneath near the inside of the refrigerator wall. It's held in by a small nut that requires about a 4 extension to reach.
Check for voltage to im at harness. This filter measures about 2 inches in diameter by 4 inches high. Wire the ice maker with the unit unplugged.
It shows the elements of the circuit as streamlined shapes and the power and also signal links in between the tools. The collection that comprising chosen picture and the best amongst. Download this diagram and keep it handy.
Frigidaire ice maker wiring diagram. 240389601 ice maker information r134a t i c f 0 0 8 f 0 0 2 test cycling ice water. There is usually a wiring diagram wadded up in the corner of the fridge in front behind the kick plate.
We also have installation guides, diagrams and manuals to. Shop for frigidaire refrigerator lghb2867pf0 repair parts today! Trash compactor bags & parts;
This product comes equipped with an electronic defrost. When you plug it in, if the ice maker keeps filling with water continuously you need to reverse those two sets of wires. Blu brn red grn yel grn yel red yel yel yel p 3 p 1 p 2 p 4.
Frigidaire range fefb65asc parts list and wiring diagram. Find parts by name, location or by symptoms like ice maker not making ice & noisy. Frigidaire refrigerator use & care manual 64 pages.
Symbols that represent the parts in the circuit and also lines that stand for the. Be sure to disconnect the power to your refrigerator. We also have installation guides, diagrams and manuals to.
Frigidaire ice maker wiring diagram in addition, it will feature a picture of a kind that might be observed in the gallery of frigidaire ice maker wiring diagram. A wiring diagram is a streamlined traditional photographic depiction of an electrical circuit. 1 green yellow ground 2 yellow water valve 3 black line 4 light blue neutral.
All electrical parts and wiring must be shielded. Frigidaire ice maker wiring diagram have an image associated with the other. Bad thermal cutoff on frigidaire ice maker handyman wire usa.
Find parts by name, location or by symptoms like ice maker not making ice & noisy. Collection of frigidaire ice maker wiring diagram. This is an ice maker, which connects to the water lines to provide fresh ice.
Ice maker assembly for lg refrigerator. It shows the elements of the circuit as streamlined shapes, and the power and also signal links in between the tools. Frigidaire ice maker wiring diagram.
2) there's a small plastic unit just inside the ice maker to take out. Once the water has been frozen the cubes will be ejected from the mold in to the ice bucket. (7) the ice maker assembly is used to produce ice for your refrigerator.
For a two pack, order wfcb2pak. Shop for frigidaire refrigerator lfhb2741pfda repair parts today!

Frigidaire FRS26ZRFW1 sidebyside refrigerator parts

Frigidaire Ice Maker Wiring Diagram Free Wiring Diagram

Frigidaire Ice Maker Wiring Diagram Free Wiring Diagram

Frigidaire Ice Maker Wiring Diagram Free Wiring Diagram

Looking for Universal/Multiflex (Frigidaire) model IM115
Frigidaire Refrigerator Frigidaire Refrigerator Schematic

Frigidaire Ice Maker Parts Diagram Wiring Site Resource

Looking for Frigidaire model FFHS2611LBRA sidebyside
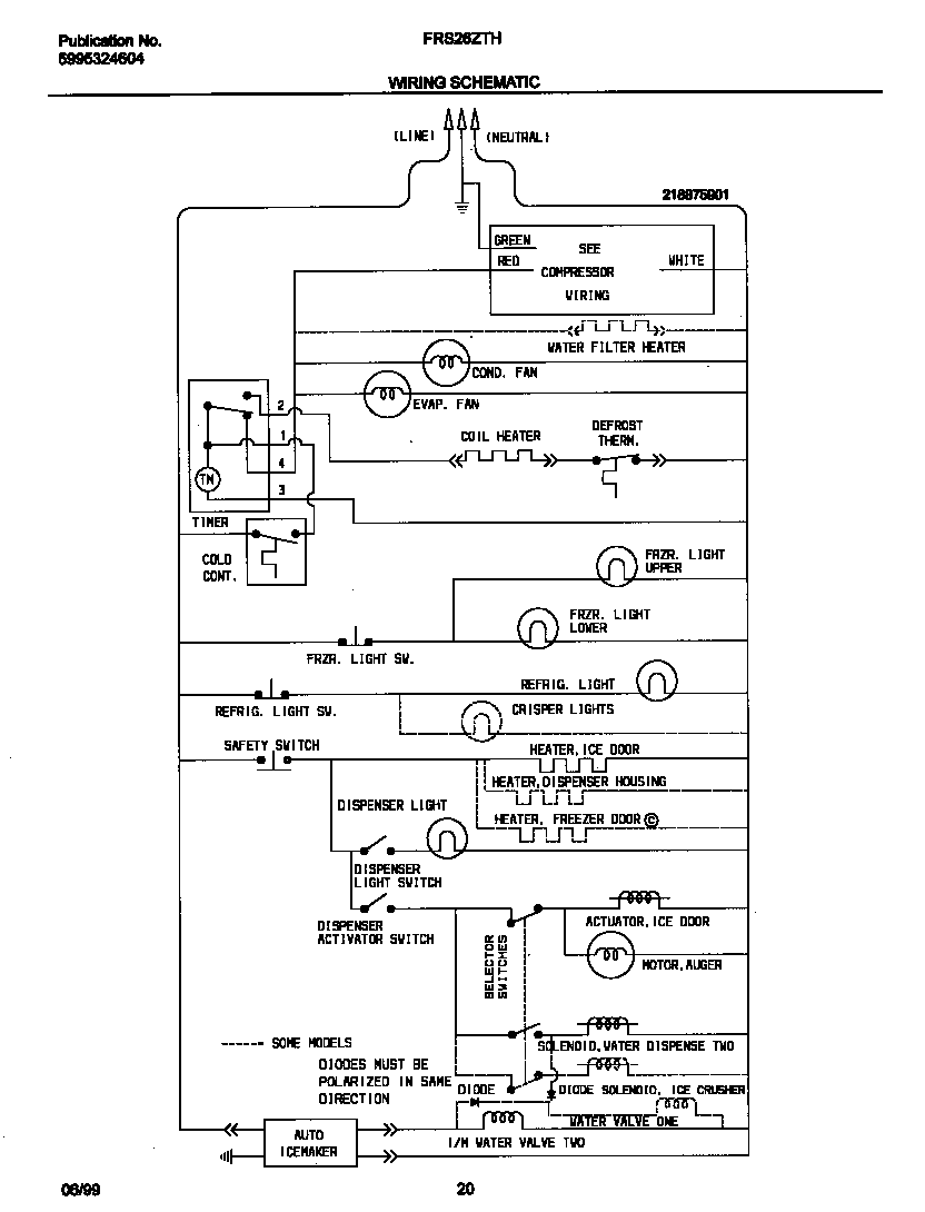
Frigidaire Frs26lf8cb1 Wiring Diagram

Frigidaire Ice Maker Wiring Diagram Free Wiring Diagram

Frigidaire Ice Maker Wiring Diagram Collection Wiring

Frigidaire Ice Maker Wiring Diagram Collection Wiring

frigidaire ice maker wiring diagram Wiring Diagram
Wiring Diagram 34 Frigidaire Refrigerator Wiring Diagram

Whirlpool Refrigerator Ice Maker Wiring Diagram Wiring

Looking for Frigidaire model LFHB2741PF4 bottommount

Frigidaire Ice Maker Wiring Diagram Collection Wiring

frigidaire ice maker wiring diagram Wiring Diagram

[DIAGRAM] Frigidaire Refrigerator Ice Maker Wiring Diagrams